Trilocale in vendita

Cesena, Via Cesenatico - Macerone
€ 149.000
3 locali 3 locali
81 Mq 81 Mq
1 bagno 1 bagno

Trilocale in vendita

Cesena, Via Cesenatico - Macerone

Descrizione annuncio

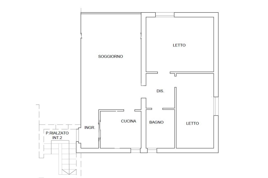
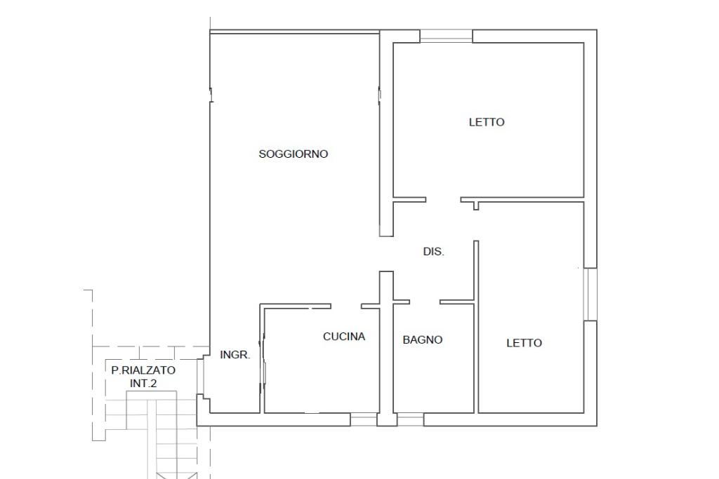
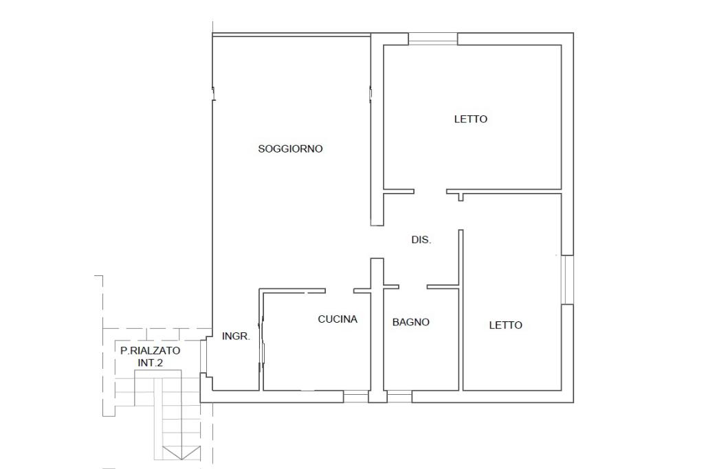
Nel tranquillo contesto di Macerone, nel comune di Cesena, è disponibile un appartamento in vendita che offre comfort e praticità. Situato al piano rialzato di un piccolo condominio composto da soli quattro appartamenti, questa proprietà è stata ristrutturata internamente negli anni '90. L'appartamento si apre su un ingresso accogliente che conduce a un luminoso soggiorno e a una cucina funzionale, perfetta per chi ama cucinare e intrattenere. La zona notte comprende una spaziosa camera da letto matrimoniale e una camera singola, ideale per una famiglia o per chi necessita di uno spazio aggiuntivo per ospiti o ufficio. Il bagno è dotato sia di vasca che di doccia, offrendo opzioni di relax e praticità. Completa la proprietà una comoda dispensa, utile per organizzare al meglio gli spazi.

Contattaci per una visita!

VAI ALLA SEZIONE ^MAPPE SENSIBILI^, CLICCANDO SULLE MACCHINE FOTOGRAFICHE POTRAI VISUALIZZARE LE FOTO E LA DISPOSIZIONE DEGLI AMBIENTI. Per qualsiasi informazione o per fissare un appuntamento chiama: 0547 404628 oppure manda un'email a

Mostra tutto

Nelle vicinanze

Scuole Scuole
Scuole
2,5 Km
Farmacia Farmacia
Farmacia
3,0 Km
Ristoranti Ristoranti
La Meridiana
520 m
Ristoranti
530 m
Mostra tutto

Caratteristiche

Rif.:
61165466
Piano:
1 di 3 (Piano basso)
Posti auto:
1
Camere da letto:
2
Arredamento:
Parziale
Condizionamento:
Autonomo
Mostra tutto
Prezzo Prezzo
€ 149.000
Rata mutuo Rata mutuo
€ 702 / mese
Spese annue Spese annue
€ 70
Proponi il tuo prezzoProponi il tuo prezzo

Classe Energetica

Questo immobile è esente da classe energetica
Anno di costruzione:
1950
Riscaldamento:
Autonomo
Tipo impianto:
A radiatori
Tipo alimentazione:
Metano

Ti interessa visionare l'immobile?

Fissa un appuntamento  Fissa un appuntamento

Richiedi informazioni

Clicca su Leggi per aprire l'informativa
* Questi campi sono obbligatori

Calcola il tuo mutuo

Semplice e senza impegno
Anticipo

( % )
Mutuo

( % )

pochi semplici passi

inserisci i tuoi dati
Questionario completato
Grazie per aver richiesto un appuntamento senza impegno con un nostro Consulente del Credito e Assicurativo.

Hai inserito correttamente tutti i dati necessari e a breve riceverai una e-mail con un link da convalidare per inviare i tuoi dati.
Affiliato
Studio Cervese Srl
Via Valsugana, 44/48 47023 Cesena (FC)

Il nostro staff


  • Matteo Mambelli
    Affiliato

  • Francesco Brighi
    Collaboratore

  • Angela Colucci
    Coordinatrice

  • Marco Casule
    Collaboratore

  • Guendalina Zambon
    Collaboratrice
Via Valsugana, 44/48 47023 Cesena (FC)
Zona: Cesena Sant'Egidio-Villachiaviche
Mostra su mappa
Orari: Lun- Ven: 9,00-13,00; 15,30-20,00 Sab:9,00-13,00
Affiliato
Studio Cervese Srl
Via Valsugana, 44/48 47023 Cesena (FC)

2026 Tecnocasa Franchising S.p.A. - P. IVA 08365160152 - Via Monte Bianco 60/A 20089 Rozzano (MI). Ogni agenzia ha un proprio titolare ed è autonoma. Privacy policy | Policy utilizzo | Cookie policy