Rustico in vendita

Cesena, Via renato medri - Gattolino
€ 210.000
6 locali 6 locali
200 Mq 200 Mq
4 bagni 4 bagni

Rustico in vendita

Cesena, Via renato medri - Gattolino

Descrizione annuncio

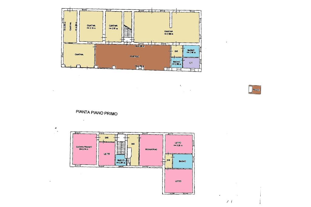
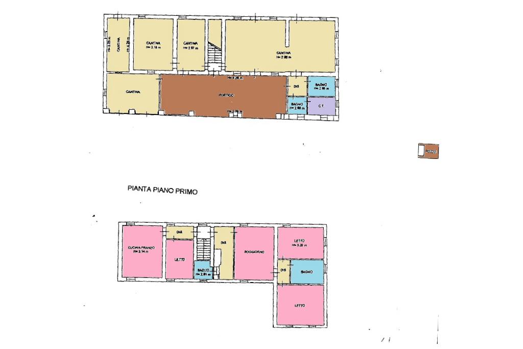
A Gattolino, in posizione ben visibile e vicinissima alle strade principali, si vende una casa colonica vincolata da sottoporre a restauro e risanamento conservativo.
Attualmente la soluzione si compone di piano terra dove troviamo vani cantina, stalla e portico e bagno; un piano primo ad uso abitativo di composto da ampia zona giorno separata con camino, due bagni e quattro camere da letto.
In corpo distaccato sono presenti locali ad uso deposito attrezzi, pollai e un tipico pozzo.


La soluzione si presta a diventare una casa indipendente con giardino oppure potrebbe essere l'ideale per la realizzazione di una struttura ricettiva.

Contattaci per una visita!

VAI ALLA SEZIONE ^MAPPE SENSIBILI^, CLICCANDO SULLE MACCHINE FOTOGRAFICHE POTRAI VISUALIZZARE LE FOTO E LA DISPOSIZIONE DEGLI AMBIENTI. Per qualsiasi informazione o per fissare un appuntamento chiama: 0547 404628 oppure manda un'email a

Mostra tutto

Nelle vicinanze

Trasporto pubblico Trasporto pubblico
Cesena, Piazzale dell'Accoglienzia
Cesena, Piazzale dell'Accoglienzia
590 m
Scuole Scuole
Scuole
990 m
Scuola Secondaria di I Grado "Anna Frank"
2,5 Km
Scuola Primaria "Bruno Munari"
2,5 Km
Farmacia Farmacia
Farmacia Villa San Giuseppe
1,2 Km
Supermercati Supermercati
Punto sma
1,6 Km
Bar Bar
Casa del Popolo / Dolcevita Cafè
2,9 Km
Ristoranti Ristoranti
Pizzeria Jonny
1,4 Km
Circolo Fuorimano
1,6 Km
Ristorante Pizzeria La Greppia
2,8 Km
Mostra tutto

Caratteristiche

Rif.:
61113146
Piano:
Su più livelli di 2
Totale piani:
2
Posti auto:
2
Camere da letto:
4
Arredamento:
Assente
Mostra tutto
Prezzo Prezzo
€ 210.000
Rata mutuo Rata mutuo
€ 998 / mese
Spese annue Spese annue
€ 0
Proponi il tuo prezzoProponi il tuo prezzo

Classe Energetica

G
G
G
G
G
G
G
G
G
EP globale non rinnovabile:
373.97 kW h/m² anno
EP globale rinnovabile:
3.00 kW h/m² anno
EP invernale del fabbricato:
EP estiva del fabbricato:
Anno di costruzione:
1900
Riscaldamento:
Autonomo
Tipo impianto:
A radiatori
Tipo alimentazione:
Metano

Ti interessa visionare l'immobile?

Fissa un appuntamento  Fissa un appuntamento

Richiedi informazioni

Clicca su Leggi per aprire l'informativa
* Questi campi sono obbligatori

Calcola il tuo mutuo

Semplice e senza impegno
Anticipo

( % )
Mutuo

( % )

pochi semplici passi

inserisci i tuoi dati
Questionario completato
Grazie per aver richiesto un appuntamento senza impegno con un nostro Consulente del Credito e Assicurativo.

Hai inserito correttamente tutti i dati necessari e a breve riceverai una e-mail con un link da convalidare per inviare i tuoi dati.
Affiliato
Studio Cervese Srl
Via Valsugana, 44/48 47023 Cesena (FC)

Il nostro staff


  • Matteo Mambelli
    Affiliato

  • Francesco Brighi
    Collaboratore

  • Angela Colucci
    Coordinatrice

  • Marco Casule
    Collaboratore

  • Guendalina Zambon
    Collaboratrice
Via Valsugana, 44/48 47023 Cesena (FC)
Zona: Cesena Sant'Egidio-Villachiaviche
Mostra su mappa
Orari: Lun- Ven: 9,00-13,00; 15,30-20,00 Sab:9,00-13,00
Affiliato
Studio Cervese Srl
Via Valsugana, 44/48 47023 Cesena (FC)

2026 Tecnocasa Franchising S.p.A. - P. IVA 08365160152 - Via Monte Bianco 60/A 20089 Rozzano (MI). Ogni agenzia ha un proprio titolare ed è autonoma. Privacy policy | Policy utilizzo | Cookie policy