Casa indipendente in vendita

Cesena, Via Cervese - Pioppa
€ 210.000
3 locali 3 locali
120 Mq 120 Mq
3 bagni 3 bagni

Casa indipendente in vendita

Cesena, Via Cervese - Pioppa

Descrizione annuncio

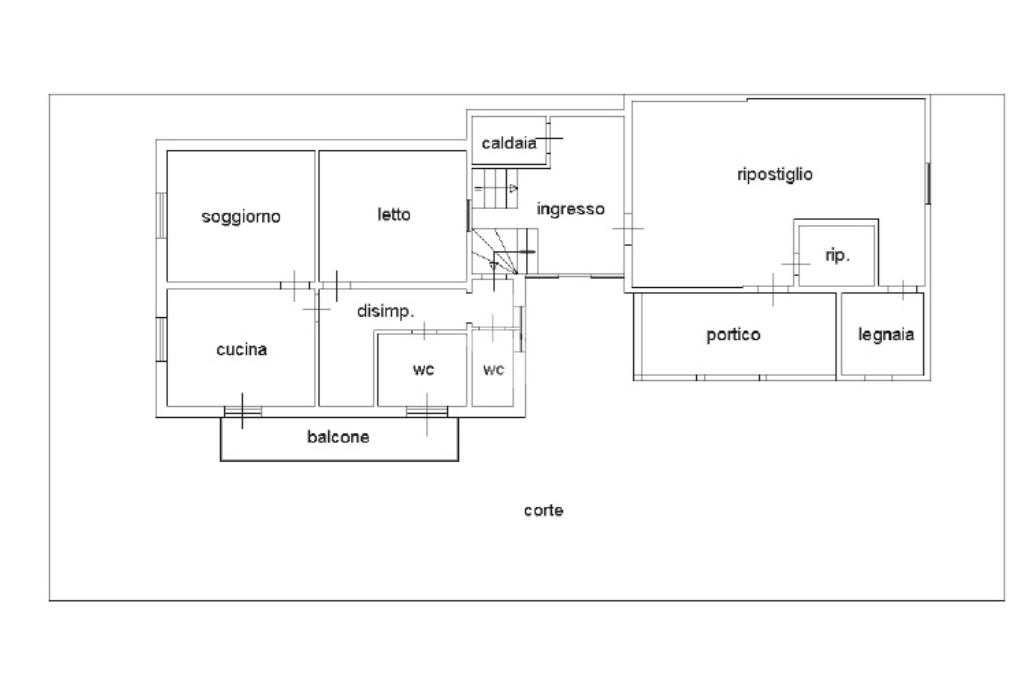
Nel comune di Cesena, nella tranquilla località di Pioppa, è disponibile per la vendita una casa indipendente ristrutturata nel 2002. L'immobile si distingue per la sua indipendenza e offre un portico accogliente, un giardino curato e un orto per chi ama coltivare. Gli spazi interni sono gestiti in modo originale, ma funzionale. Al piano terra troviamo una taverna con cucina, bagno con doccia e ripostiglio. Questo spazio ti consente di vivere a contatto con lo spazio esterne retrostante. Ci spostiamo nell'altra ala della casa dove troviamo una zona giorno separata servita da balcone, un bagno, una camera da letto, attraverso una scala si raggiunge la parte mansardata dove ci accoglie un salottino utilizzato come angolo lettura e momento relax, bagno e camera matrimoniale con cabina armadio.

Di proprietà anche un terreno di circa 2000mt.

Questa soluzione rappresenta un'opportunità unica per chi desidera vivere in una zona tranquilla, senza rinunciare alla comodità.

Contattaci per una visita!

VAI ALLA SEZIONE ^MAPPE SENSIBILI^, CLICCANDO SULLE MACCHINE FOTOGRAFICHE POTRAI VISUALIZZARE LE FOTO E LA DISPOSIZIONE DEGLI AMBIENTI. Per qualsiasi informazione o per fissare un appuntamento chiama: 0547 404628 oppure manda un'email a

Mostra tutto

Nelle vicinanze

Scuole Scuole
Scuola Primaria Statale "Michelangelo Buonarroti"
2,0 Km
Scuole
2,2 Km
Ristoranti Ristoranti
Circolo Fuorimano
2,0 Km
Ristorante Pizzeria La Greppia
2,5 Km
Ostaria del Mare
2,6 Km
Mostra tutto

Caratteristiche

Rif.:
61129430
Piano:
2 di 2 (Piano su più livelli)
Posti auto:
1
Balconi:
1
Camere da letto:
3
Arredamento:
Parziale
Mostra tutto
Prezzo Prezzo
€ 210.000
Rata mutuo Rata mutuo
€ 979 / mese
Spese annue Spese annue
€ 0
Proponi il tuo prezzoProponi il tuo prezzo

Classe Energetica

Questo immobile è esente da classe energetica
Anno di costruzione:
1967
Riscaldamento:
Autonomo
Tipo impianto:
A radiatori
Tipo alimentazione:
Metano

Ti interessa visionare l'immobile?

Fissa un appuntamento  Fissa un appuntamento

Richiedi informazioni

Clicca su Leggi per aprire l'informativa
* Questi campi sono obbligatori

Calcola il tuo mutuo

Semplice e senza impegno
Anticipo

( % )
Mutuo

( % )

pochi semplici passi

inserisci i tuoi dati
Questionario completato
Grazie per aver richiesto un appuntamento senza impegno con un nostro Consulente del Credito e Assicurativo.

Hai inserito correttamente tutti i dati necessari e a breve riceverai una e-mail con un link da convalidare per inviare i tuoi dati.
Affiliato
Studio Cervese Srl
Via Valsugana, 44/48 47023 Cesena (FC)

Il nostro staff


  • Matteo Mambelli
    Affiliato

  • Francesco Brighi
    Collaboratore

  • Angela Colucci
    Coordinatrice

  • Marco Casule
    Collaboratore

  • Guendalina Zambon
    Collaboratrice
Via Valsugana, 44/48 47023 Cesena (FC)
Zona: Cesena Sant'Egidio-Villachiaviche
Mostra su mappa
Orari: Lun- Ven: 9,00-13,00; 15,30-20,00 Sab:9,00-13,00
Affiliato
Studio Cervese Srl
Via Valsugana, 44/48 47023 Cesena (FC)

2025 Tecnocasa Franchising S.p.A. - P. IVA 08365160152 - Via Monte Bianco 60/A 20089 Rozzano (MI). Ogni agenzia ha un proprio titolare ed è autonoma. Privacy policy | Policy utilizzo | Cookie policy