Casa indipendente in vendita

Cesena, Via Calabria - Mesola
€ 630.000
Prezzo aggiornato
8 locali 8 locali
300 Mq 300 Mq
5 bagni 5 bagni

Casa indipendente in vendita

Cesena, Via Calabria - Mesola

Descrizione annuncio

Scopri una villa situata nella tranquilla località di VillaChiaviche nel comune di Cesena.

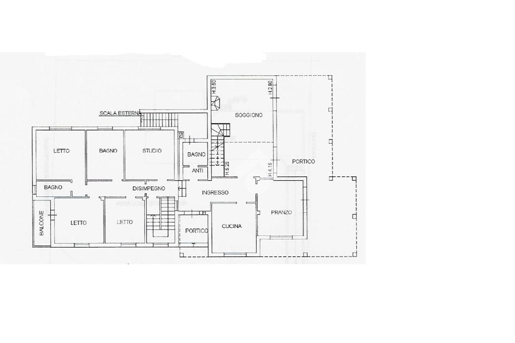
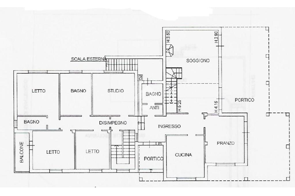
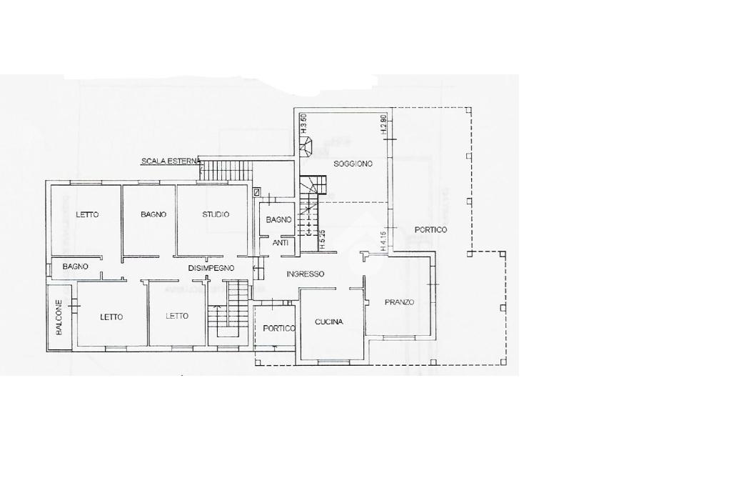
Questa casa indipendente offre un ambiente accogliente e spazioso, ideale per chi cerca comfort e privacy. La proprietà si presenta in ottime condizioni. All'esterno, un ampio giardino circonda la villa, offrendo uno spazio verde perfetto per momenti di relax all'aria aperta. Un portico accogliente introduce all'interno, dove un ampio salone con camino crea un'atmosfera calda e conviviale. La zona pranzo è separata in cucina abitabile e sala pranzo. E' presente un bagno con doccia.

La zona notte si compone di tre camere da letto, una con bagno interno, un terzo bagno con vasca idromassaggio e uno studio.

Al piano mansardato è presente un comodo salottino, prosegue poi con un bagno e altri due vani molto ampi adattabili alle diverse esigenze.

La taverna, dotata di forno e camino, è il luogo ideale per cene in famiglia o con amici, e dispone di bagno.

Questa proprietà rappresenta un'opportunità unica per chi desidera vivere in un contesto sereno, senza rinunciare alla comodità di ampi spazi abitativi.

Contattaci per una visita!

VAI ALLA SEZIONE ^MAPPE SENSIBILI^, CLICCANDO SULLE MACCHINE FOTOGRAFICHE POTRAI VISUALIZZARE LE FOTO E LA DISPOSIZIONE DEGLI AMBIENTI. Per qualsiasi informazione o per fissare un appuntamento chiama: 0547 404628 oppure manda un'email a

Mostra tutto

Nelle vicinanze

Trasporto pubblico Trasporto pubblico
Cesena, Piazzale dell'Accoglienzia
Cesena, Piazzale dell'Accoglienzia
1,5 Km
Montefiore
Montefiore
2,7 Km
Ricariche auto elettriche Ricariche auto elettriche
Eneldrive Centro Commerciale Montefiore
2,7 Km
EnelX EVA+ Cesena Centro Commerciale Montefiore
2,8 Km
Scuole Scuole
Scuole
1,7 Km
Scuola Primaria "Il Gelso"
1,7 Km
Scuola Primaria "Bruno Munari"
2,0 Km
Scuola Secondaria di I Grado "Anna Frank"
2,0 Km
IPSIA Ubaldo Comandini
2,8 Km
Farmacia Farmacia
Farmacia Villa San Giuseppe
1,5 Km
Farmacia
1,8 Km
Parafarmacia Conad
2,7 Km
Supermercati Supermercati
Punto sma
1,5 Km
Conad
2,7 Km
Bar Bar
Casa del Popolo / Dolcevita Cafè
2,4 Km
Ristoranti Ristoranti
Pizzeria Jonny
1,5 Km
Ristoranti
1,8 Km
Circolo Fuorimano
3,0 Km
Mostra tutto

Caratteristiche

Rif.:
61136313
Piano:
Su più livelli di 2
Totale piani:
2
Box:
3
Posti auto:
2
Balconi:
1
Mostra tutto
Prezzo Prezzo
€ 630.000
Rata mutuo Rata mutuo
€ 2.936 / mese
Spese annue Spese annue
€ 0
Proponi il tuo prezzoProponi il tuo prezzo

Classe Energetica

F
F
F
F
F
F
F
F
F
EP globale non rinnovabile:
241.22 kW h/m² anno
EP globale rinnovabile:
0.50 kW h/m² anno
EP invernale del fabbricato:
EP estiva del fabbricato:
Anno di costruzione:
1992
Riscaldamento:
Autonomo
Tipo impianto:
A radiatori
Tipo alimentazione:
Metano

Prezzo ridotto di €1 (1%%)

Ti interessa visionare l'immobile?

Fissa un appuntamento  Fissa un appuntamento

Richiedi informazioni

Clicca su Leggi per aprire l'informativa
* Questi campi sono obbligatori

Calcola il tuo mutuo

Semplice e senza impegno
Anticipo

( % )
Mutuo

( % )

pochi semplici passi

inserisci i tuoi dati
Questionario completato
Grazie per aver richiesto un appuntamento senza impegno con un nostro Consulente del Credito e Assicurativo.

Hai inserito correttamente tutti i dati necessari e a breve riceverai una e-mail con un link da convalidare per inviare i tuoi dati.
Affiliato
Studio Cervese Srl
Via Valsugana, 44/48 47023 Cesena (FC)

Il nostro staff


  • Matteo Mambelli
    Affiliato

  • Francesco Brighi
    Collaboratore

  • Angela Colucci
    Coordinatrice

  • Marco Casule
    Collaboratore

  • Guendalina Zambon
    Collaboratrice
Via Valsugana, 44/48 47023 Cesena (FC)
Zona: Cesena Sant'Egidio-Villachiaviche
Mostra su mappa
Orari: Lun- Ven: 9,00-13,00; 15,30-20,00 Sab:9,00-13,00
Affiliato
Studio Cervese Srl
Via Valsugana, 44/48 47023 Cesena (FC)

2025 Tecnocasa Franchising S.p.A. - P. IVA 08365160152 - Via Monte Bianco 60/A 20089 Rozzano (MI). Ogni agenzia ha un proprio titolare ed è autonoma. Privacy policy | Policy utilizzo | Cookie policy