Porzione di bifamiliare in vendita

Cesena, Via montaletto - San Giorgio
€ 360.000
4 locali 4 locali
150 Mq 150 Mq
2 bagni 2 bagni

Porzione di bifamiliare in vendita

Cesena, Via montaletto - San Giorgio

Descrizione annuncio

VILLACHIAVICHE- CESENA

In posizione tranquilla e vicina a tutti i principali servizi proponiamo in vendita una porzione di bifamiliare con ingresso indipendente e giardino.
L'immobile internamente si presenta allo stato grezzo mentre esternamente sarà portato a termine entro l'estate 2025. E' previsto un impianto fotovoltaico.
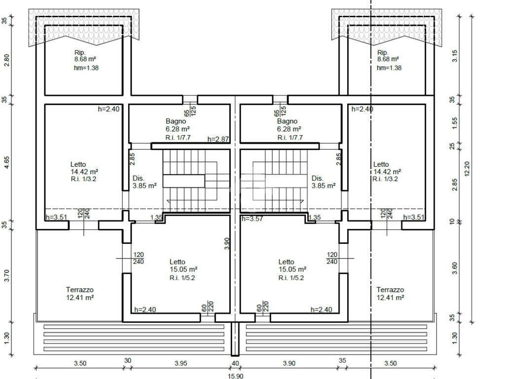
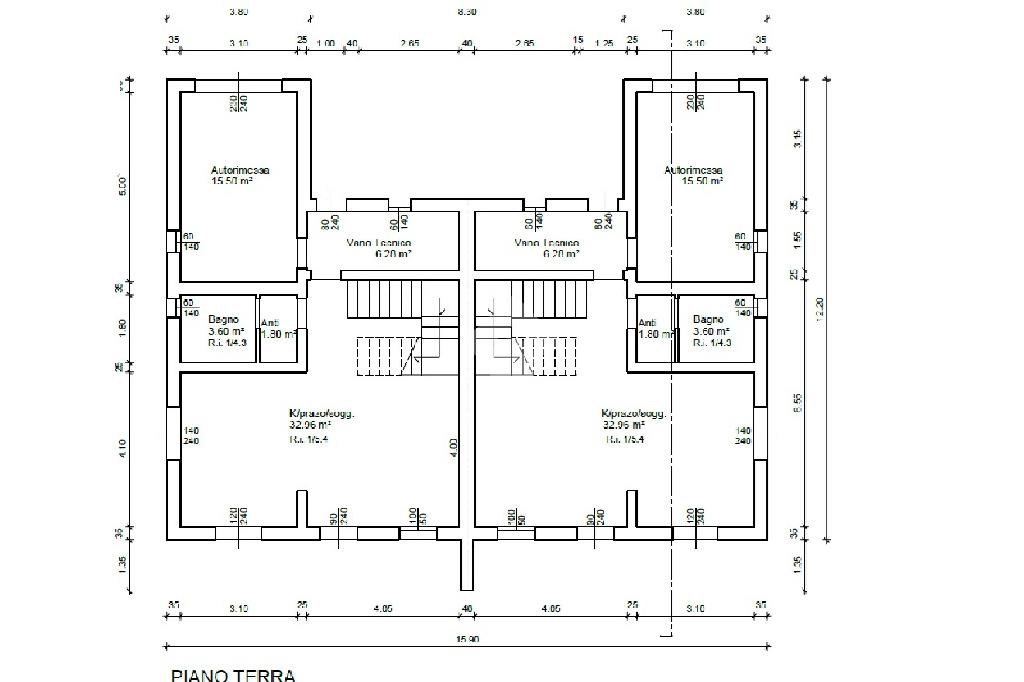
La soluzione disposta su due livelli è così composta:
-Al piano terra soggiorno e cucina open space di oltre 30 mq, bagno finestrato con box doccia e un ripostiglio.
-Al primo piano troviamo due camere da letto con bagno e terrazzo. Vi è la possibilità di una terza camera.
E' presente inoltre un ambiente sottotetto da personalizzare in base alle proprie necessità.
Completa la soluzione il giardino esclusivo e il garage di proprietà.

E' in vendita anche la porzione abbinata.

VAI ALLA SEZIONE ^MAPPE SENSIBILI^, CLICCANDO SULLE MACCHINE FOTOGRAFICHE POTRAI VISUALIZZARE LE FOTO E LA DISPOSIZIONE DEGLI AMBIENTI. Per qualsiasi informazione o per fissare un appuntamento chiama: 0547 404628 oppure manda un'email a

Mostra tutto

Nelle vicinanze

Scuole Scuole
Scuole
1,5 Km
Ristoranti Ristoranti
I Bosconi
810 m
Ristorante Pizzeria La Greppia
1,8 Km
Mostra tutto

Caratteristiche

Rif.:
60990369
Piano:
2 di 2 (Piano su più livelli)
Box:
1
Posti auto:
3
Terrazzi:
1
Camere da letto:
3
Mostra tutto
Prezzo Prezzo
€ 360.000
Rata mutuo Rata mutuo
€ 1.678 / mese
Spese annue Spese annue
€ 0
Proponi il tuo prezzoProponi il tuo prezzo

Classe Energetica

Questo immobile è esente da classe energetica
Anno di costruzione:
2024
Riscaldamento:
Autonomo
Tipo impianto:
Ad aria
Tipo alimentazione:
Pannelli

Ti interessa visionare l'immobile?

Fissa un appuntamento  Fissa un appuntamento

Richiedi informazioni

Clicca su Leggi per aprire l'informativa
* Questi campi sono obbligatori

Calcola il tuo mutuo

Semplice e senza impegno
Anticipo

( % )
Mutuo

( % )

pochi semplici passi

inserisci i tuoi dati
Questionario completato
Grazie per aver richiesto un appuntamento senza impegno con un nostro Consulente del Credito e Assicurativo.

Hai inserito correttamente tutti i dati necessari e a breve riceverai una e-mail con un link da convalidare per inviare i tuoi dati.
Affiliato
Studio Cervese Srl
Via Valsugana, 44/48 47023 Cesena (FC)

Il nostro staff


  • Matteo Mambelli
    Affiliato

  • Francesco Brighi
    Collaboratore

  • Angela Colucci
    Coordinatrice

  • Marco Casule
    Collaboratore

  • Guendalina Zambon
    Collaboratrice
Via Valsugana, 44/48 47023 Cesena (FC)
Zona: Cesena Sant'Egidio-Villachiaviche
Mostra su mappa
Orari: Lun- Ven: 9,00-13,00; 15,30-20,00 Sab:9,00-13,00
Affiliato
Studio Cervese Srl
Via Valsugana, 44/48 47023 Cesena (FC)

2025 Tecnocasa Franchising S.p.A. - P. IVA 08365160152 - Via Monte Bianco 60/A 20089 Rozzano (MI). Ogni agenzia ha un proprio titolare ed è autonoma. Privacy policy | Policy utilizzo | Cookie policy